柏駅から徒歩1分 好立地の路面店舗 中華料理居抜き
千葉県柏市柏1−1−8
物件情報
- 物件名: K18ビル 1階
- 追加された日付: 2022.11.08
- 所在地(丁目まで): 千葉県柏市柏 1-1-8 K18ビル 1F
- 最寄り駅: 柏駅南口徒歩1分 柏駅から145m
- 平均乗降客数: JR常磐線250,980人 東武野田線147,553人/日
- 構造/築年数: 鉄筋コンクリート/2018年築
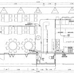
- 面積/階数: 109.85㎡ 33.22坪/1階
- 坪数: 33.22 坪
- 引き渡し時期/方法: 相談
- 月額賃料/坪単価: 639,485円
- 保証金または敷金/償却: 6ヵ月分
- 契約期間/更新料: 10年/相談
- 礼金/企画料: 1ヵ月/1ヵ月
- 造作譲渡代金/手数料: 1000万円/10%
- 現状/閉店理由: 営業中/業態転換のため
チェックポイント
| ・柏駅から徒歩1分。好立地の路面店 | |
| ・中華料理店居抜き。重飲食OK | |
| ・冷蔵庫、食洗器、コールドテーブルなど譲渡 | |
| ・家賃保証会社、火災保険の加入が必須です。 | |
| ・現契約条件に付き変更になる場合があります。 |
地図で見る
この物件は、の物件で、最寄り駅はです。現在、この物件はESTATECafeに掲載されています。この物件は639,485 円で掲載されています。年に建てられたこの物件は、最近として利用されています。このタイプの物件に適したビジネスはでしょう。






